Siphon für die Dusche online kaufen

Eine Dusche ist heute oft genauso gefragt wie eine Badewanne. Daher werden immer häufiger Duschkabinen ins Bad eingebaut. Die ideale Lösung ist hier die Kombination aus Duschkabine und Badewanne. Je nach Raumangebot im Bad ist das aber häufig nicht möglich. Besonders bei kleineren Bädern bietet es sich an, eine Duschkabine anstelle einer Badewanne zu wählen. Auf diese Weise wird viel Platz im Bad eingespart. Selbstverständlich müssen auch die Zuleitung und der Siphon speziell für die Dusche installiert werden. Die entsprechenden Modelle finden Sie in unserem Sortiment. Wählen Sie den Siphon für Ihre Dusche ganz nach Ihren persönlichen Vorstellungen und örtlichen Gegebenheiten aus, Sie werden mit Sicherheit auch für aufwendigere Installationen alles Notwendige bei uns erhalten.

Dusche statt Badewanne
Viele Bäder sind als Standard mit einer Badewanne ausgestattet. Oft ist jedoch eine Dusche für die persönliche Nutzung besser geeignet. Sie ist im Alltag praktisch und bietet einen vernünftigen Spritzschutz. Besonders für ältere Menschen sind Duschen mit flachem Einstieg praktischer als Badewannen. Wird eine barrierefreie Dusche eingebaut, ist ein spezieller Siphon für die Dusche notwendig, um das Ablaufen des Wassers zu gewährleisten. Ein Siphon für die Dusche kommt ohne Überlauf aus. Aus diesem Grund ist ein Verschluss des Ablaufs konstruktionsbedingt nicht vorgesehen. So kann es zu keinem Überlaufen kommen, wenn der Ablauf versehentlich geschlossen ist. Diese Konstruktion spart nicht nur aufwendige Rohrkonstruktionen, sie bietet auch größtmögliche Sicherheit, da nicht ablaufendes Wasser sofort auffällt.
Verschiedene Modelle im Onlineshop von Sanitär Produkte
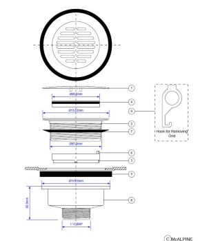
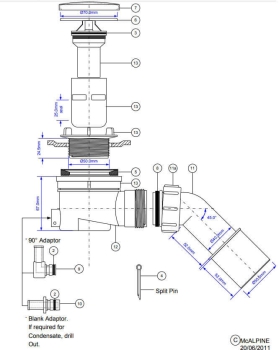
Der ideale Siphon für Ihre Dusche ist von mehreren Kriterien abhängig. Zuerst ist die Bauhöhe wichtig. Je nachdem, wie viel Platz unter Ihrer Dusche für den Siphon vorhanden ist, muss die passende Bauhöhe ausgewählt werden. Dabei beträgt die minimale Bauhöhe etwa 58 mm, maximal werden bis zu 90 mm benötigt. Selbstverständlich erhalten Sie bei uns auch einen Bodenablauf mit Geruchsverschluss als Spezial Siphon für eine Dusche, die keine eigene Duschwanne verwendet, da diese direkt begehbar oder befahrbar ist. Der zweite entscheidende Faktor ist der Durchmesser, den Ihre Dusche für den Siphon vorgibt. Als Quasi-Standard hat sich hier die 90 mm Größe etabliert, jedoch führen wir selbstverständlich auch andere gängige Größen wie 50, 55 oder 60 mm Duschmesser. Schließlich entscheidet das Design über den richtigen Siphon für Ihre Dusche. Für eine möglicherweise benötigte Verlängerung ist natürlich auch der passende Ablaufschlauch bei uns erhältlich.